12185 Turnerville Farms Court, Chunchula, AL 36521
- 3 beds |
- 2 baths |
- 1,532 sqft
Single-Family Home
Built in 2007
3acre lot
—— car garage
$166/sqft
Listed 2 months ago
Property Description
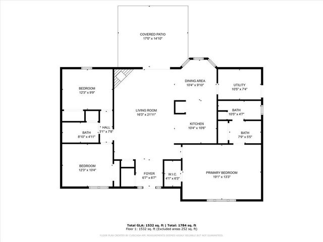
Welcome to this beautiful home situated on 3± acres in a quiet community, where you can enjoy peaceful surroundings and views from your own backyard. Featuring a split-bedroom floor plan with 3 bedrooms and 2 bathrooms, this home offers comfort, style, and functionality. This home offers LVP flooring throughout most of the home—no carpet. Step into the home’s foyer, open to the spacious living room with a cathedral ceiling and a wood-burning fireplace. The living room offers French doors open to a generous covered back porch, perfect for outdoor living. The kitchen is equipped with black and black stainless appliances, breakfast bar and connects to a breakfast area with a bay window overlooking the back acreage. Just off the kitchen is the laundry area/mudroom with access to the house from the driveway. The primary bedroom is spacious and boasts turtle-back ceilings, lots of windows offer an abundance of natural light, a walk-in closet, an additional closet in the vanity area, and a linen closet in the ensuite bath with a soaking tub/shower combination. Additional features include mature fruit trees, and recent updates such as an HVAC system installed in 2018 (per previous owner) and seamless gutters. Call today to schedule an appointment to make this home your New Beginning! Square Footage & Floor plan measured using CubiCasa - which is deemed reliable but not guaranteed. Buyer & Buyer's Agent should verify all pertinent information. Property was placed back on the market due to NO FAULT OF THE SELLER! Buyer’s financing fell through.
- Listing Status:
- Active
- Date Added:
- August 13, 2025 at 05:00AM
- Listing Office:
- Roberts Brothers West : 251-661-4660
- Listing Agent:
- Devin Scott : 251-463-7781
- MLS ID:
- 7632429
- General: Rain GuttersWorkshop
- Style: Ranch
- Pool: None
- Parking: Driveway
- Roofing: Shingle
- Windows: Double Pane Windows
- General: Brick 4 SidesOneSlab
- Road/Access: Private Road
- Originating MLS: GCMLS2
- County: Mobile - AL
- Topography: Sloping
- Zoning: 1305220000001089
- View: Trees/Woods
- Fencing: Back YardFenced
- Utilities: Electricity AvailableWater Available110 VoltsOther
- Water: Public
- Sewer: Septic Tank
- Source: GCMLS2
This listing courtesy of Devin Scott, Roberts Brothers West
Monthly Payment
- Principal & Interest $
- Property Taxes $
- Home Insurance $
- VA Funding Fee $
Location
Schools Nearby
North Mobile County K - 8 School
1950 Salco Rd W, Axis, AL, 36505
Grades KG-8
4.52 miles away
Lott Middle School
17740 Celeste Rd, Citronelle, AL, 36522
Grades 6-8
9.01 miles away
Citronelle Center for Advanced Technology
8200 E Lebaron Ave, Citronelle, AL, 36522
Grades 9-12
11.28 miles away



