126 Edgewood Trail, Headland, AL 36345
- 3 beds |
- 2 baths |
- 1,820 sqft
Single-Family Home
Built in 2025
0.27acre lot
2 car garage
$148/sqft
Listed 2 months ago
Property Description
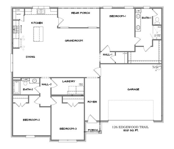
1,820 Square Feet 3 Bedrooms 2 Bathrooms 2-Car Garage This thoughtfully designed split floorplan home offers 1,820 square feet of comfort and functionality. Step inside through the welcoming foyer and into the spacious grandroom, where the open plan layout seamlessly connects the living, dining, and kitchen areas. The kitchen is a chef's dream with a walk-in pantry, corner pantry, granite countertops, kitchen island, and stainless steel appliances including a built-in microwave, gas range, and dishwasher. Retreat to the private owner's suite featuring his-and-her sinks, a tile shower, toilet closet, and a generous walk-in closet. Additional bedrooms provide space for family or guests, with convenient extra storage closets and a linen cabinet throughout the home. Finishes include vinyl plank, vinyl tile, and carpet flooring for both style and durability. Enjoy the outdoors with a rear covered patio overlooking the yard, complete with a sprinkler system. Added peace of mind comes with a security system and the efficiency of a gas water heater. The rendering shown is a representation of the home and is not a depiction of the finished home.
- Listing Status:
- Active
- Listing Office:
- Coldwell Banker/Alfred Saliba : 334-793-6600
- Listing Agent:
- Robert Hewes :
- MLS ID:
- 205161

- Style: Traditional
- Pool: None
- Parking: 2 CarAttachedGarage Door OpenerParking spaces: 2
- General: BrickInsulatedOneSlab
- Originating MLS: Southeast Alabama Multiple Listing Service/Southeast Alabama AOR
- County: Henry
- Zoning: 37 24 03 08 1 002 024.063
- Utilities: City Trash ServiceAlabama Power
- Water: PublicHeadland
- Sewer: Public Sewer
- Source: Southeast Alabama Multiple Listing Service/Southeast Alabama AOR
This listing courtesy of Robert Hewes, Coldwell Banker/Alfred Saliba
Monthly Payment
- Principal & Interest $
- Property Taxes $
- Home Insurance $
- VA Funding Fee $
Location
Schools Nearby
Headland Elementary School
305 Mitchell St, Headland, AL, 36345
Grades PK-5
1.32 miles away
Headland Middle School
1 Martin Luther King Dr, Headland, AL, 36345
Grades 6-9
1.75 miles away
Headland High School
8 Sporman St, Headland, AL, 36345
Grades 10-12
1.22 miles away






