$619,000
8268 Ghislaine way, Antelope, CA 95843
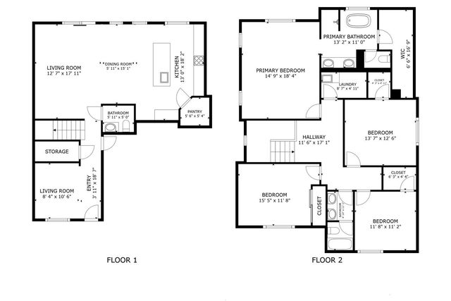
- 4 beds |
- 3 baths |
- 2,201 sqft
Single-Family Home
Built in 2025
4,718sqft lot
2 car garage
$281/sqft
Listed 9 days ago
Property Description
Brand new construction.Experience the pinnacle of modern living in this stunning home! Designed with sleek finishes, open-concept layouts,and energy-efficient features,this home combines elegance with functionality. Enjoy a gourmet kitchen,abutdant natural ligh throughout. With high-quality craftsmanship, modern amenties this property is practical and functional.Solar system, energy efficient fixtures, water conservatory plumbing fixtures saves a lot on utility bills. Builder warranty add peace of mind and pride of ownership.
- Listing Status:
- Active
- Listing Office:
- eXp Realty of Northern California, Inc. : 5849427
- Listing Agent:
- Neena Khullar : 916 8473005
- MLS ID:
- 225138375
- Parking: AttachedGarage Door OpenerParking spaces: 0
- Roofing: Composition
- Windows: Dual Pane Full
- General: StuccoFrameTwoSlab
- HOA Amenities: 0.0
- Originating MLS: MLS Metrolist
- School District: Placer
- County: Sacramento
- Zoning: 203-1870-089-0000
- Utilities: PublicSewer In & ConnectedElectricSolar220 VoltsPhotovoltaics Seller OwnedPhotovoltaics Third-Party Owned
- Water: Water DistrictPublic
- Sewer: Public Sewer
- Source: MLS Metrolist
This listing courtesy of Neena Khullar, eXp Realty of Northern California, Inc.
Monthly Payment
$Est. Payment
- Principal & Interest $
- Property Taxes $
- Home Insurance $
- VA Funding Fee $
Location
Schools Nearby
O
Olive Grove Elementary School
7926 Firestone Way, Antelope, CA, 95843
Grades KG-5
0.54 miles away
A
Antelope Crossing Middle School
9200 Palmerson Dr, Antelope, CA, 95843
Grades 6-8
0.27 miles away






