649 W Gladstone Street, San Dimas, CA 91773
- 2 beds |
- 1 bath |
- 2,113 sqft
Single-Family Home
Built in 1929
1.61acre lot
—— car garage
$1,514/sqft
Listed 1 year ago
Property Description
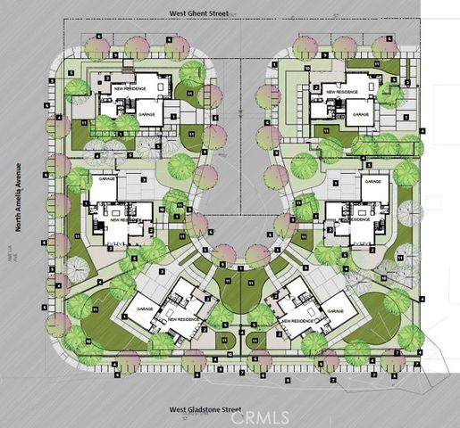
Unlock the potential of this exceptional vacant land opportunity nestled in the vibrant heart of San Dimas. Property is in a prime location at the corner of N Amelia Ave & W Gladstone St, this expansive 1.61-acre lot presents an enticing prospect for builders and investors alike. The true value of this property lies in its development potential, with land entitlements already secured and a tentative tract map for subdivision approved. This parcel offers the drafted plans for the creation of six detached single-family homes. Each residence provides a spacious living environment, ranging from 2383 to 2597 square feet, providing ample room for comfortable modern living. Encompassing a total of over 70,000 square feet, this sizable lot presents endless possibilities. *Each lot has the capability of building a ADU adding another additional maximum of 1,000 livable square per ADU.* Most recent plans have the total proposed livable square footage as 19,754. Located a mere 0.2 miles away, Arma J. Shull Elementary School, boasts a stellar 10 rating and provides an excellent educational option for families. The bustling Glendora Marketplace is also within easy reach, offering a plethora of shopping, dining, and entertainment options just 0.8 miles away. A small single-family house currentl
- Listing Status:
- Active
- Date Added:
- April 7, 2024 at 05:00AM
- Listing Office:
- ALLEN WU, BROKER : 626-833-3153
- Listing Agent:
- Allen Wu : 909-594-3528
- MLS ID:
- CRCV24068771
- Pool: None
- General: 1
- HOA Amenities: 0.0
- School District: Bonita Unified
- County: Los Angeles
- Zoning: SDSF8392020001
- View: Mountain(s)Other
This listing courtesy of Allen Wu, ALLEN WU, BROKER
Monthly Payment
- Principal & Interest $
- Property Taxes $
- Home Insurance $
- VA Funding Fee $
Location
Schools Nearby
Arma J. Shull Elementary School
825 N Amelia Ave, San Dimas, CA, 91773
Grades KG-5
0.16 miles away
Vista (Alternative)
127 W Allen Ave, San Dimas, CA, 91773
Grades KG-12
0.69 miles away
Vista (Alternative)
127 W Allen Ave, San Dimas, CA, 91773
Grades KG-12
0.69 miles away
