$5,016
11955 Rivera Road, Santa Fe Springs, CA 90670
- 2,640 sqft
Commercial Property
Built in 1957
6,970sqft lot
—— car garage
$2/sqft
Listed 4 months ago
Property Description
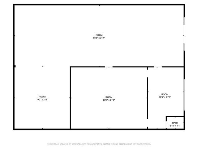
RENOVATED 2,640 SF freestanding industrial building on a 7,031 SF gated lot in the heart of Santa Fe Springs. Features two oversized front entrances—perfect for moving equipment, materials, or inventory—plus 200 amps of 3-phase power, high ceilings over 10 feet, and a secure gated entrance with easy street access. Not part of a complex—ideal for businesses needing functional space with easy access and a secure yard. MOVE-IN READY!
- Listing Status:
- Active
- Date Added:
- June 24, 2025 at 05:00AM
- Listing Office:
- Coldwell Banker Hallmark : 818-476-3000
- Listing Agent:
- Yura Sarukhanyan : 818-599-0699
- MLS ID:
- CRGD25141749
- County: Los Angeles
- Zoning: 8169003012
This listing courtesy of Yura Sarukhanyan, Coldwell Banker Hallmark
Monthly Payment
$Est. Payment
- Principal & Interest $
- Property Taxes $
- Home Insurance $
- VA Funding Fee $
Location
Schools Nearby
A
Aeolian Elementary School
11600 Aeolian St, Whittier, CA, 90606
Grades KG-6
0.56 miles away
L
Los Nietos Middle School
11425 Rivera Rd, Whittier, CA, 90606
Grades 7-8
0.99 miles away

