7744 W Thorndale Avenue, Chicago, IL 60631
- 3 beds |
- 2 baths
Single-Family Home
Built in 1938
—— sqft lot
2 car garage
$——/sqft
Listed 3 days ago
Property Description
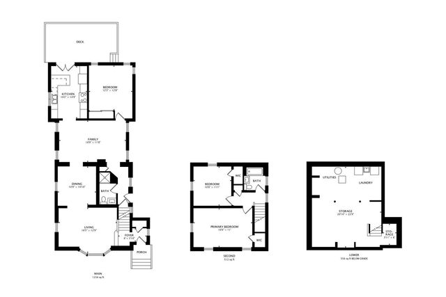
Welcome to 7744 W Thorndale! This all-brick 3-bedroom, 2-bath home is nestled in one of the most desirable pockets of Norwood Park, right on the edge of Edison Park. Featuring a recently renovated kitchen and bathrooms along with thoughtful updates throughout, this home is truly move-in ready. Step inside to find a fantastic floor plan with spacious rooms and excellent flow. The full basement offers great ceiling height and endless possibilities for additional living space. Outside, you'll love the gorgeous curb appeal, custom landscaping, and pristine backyard-perfect for entertaining or relaxing. Additional highlights include an oversized lot, a large 2-car garage, and a location that can't be beat. Restaurants, shopping, schools, and transportation are all nearby-everything you need is right here. Don't miss this opportunity to call Norwood Park home!
- Listing Status:
- Active
- Listing Office:
- Baird & Warner : 773-875-9492
- Listing Agent:
- Steve Genyk : 773-875-9492
- MLS ID:
- 12512416

- Parking: YesGarage OwnedDetachedGarageParking spaces: 2
- Windows: Skylight(s)
- General: 2 Stories
- HOA Amenities: 0.0Not Applicable
- Originating MLS: mred
- School District: 299
- County: Cook
- Zoning: 12013090300000
- Water: Lake MichiganPublic
- Sewer: Public Sewer
- Source: mred
- Ownership: Fee Simple
This listing courtesy of Steve Genyk, Baird & Warner
Monthly Payment
- Principal & Interest $
- Property Taxes $
- Home Insurance $
- VA Funding Fee $
Location
Schools Nearby
Edison Park Elementary School
6220 N Olcott Ave, Chicago, IL, 60631
Grades PK-8
0.60 miles away
Edison Park Elementary School
6220 N Olcott Ave, Chicago, IL, 60631
Grades PK-8
0.60 miles away
Taft High School
6530 W Bryn Mawr Ave, Chicago, IL, 60631
Grades 9-12
1.53 miles away






