148 Longvue Dr, Ross Twp, PA 15237
- 3 beds |
- 2 baths |
- 1,608 sqft
Single-Family Home
Built in 1938
0.39acre lot
—— car garage
$224/sqft
Listed 1 day ago
Property Description
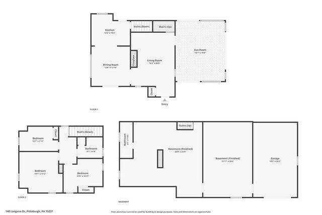
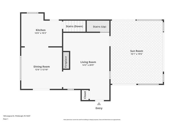
Serenity meets convenience—Ross Township home backing to Sharmyn Park. This 2-story, 3BR/2BA features LVT flooring plus an updated kitchen with stainless-steel appliances and expanded entertaining space. A vaulted four-season room with its own heating system adds true year-round living—ideal for relaxing or working from home. Upstairs you’ll find three comfortable bedrooms and a full bath. The lower level offers fresh paint and an epoxy flooring, creating flexible space for a gym, studio, or storage. 2025 care & improvements: new 3/4" pressure regulator and drain line repair; HVAC tune-up & humidifier service; GFCI and electrical safety upgrades; new dishwasher drain & AAV; pest control; stained porch and deck. Garage is fire-rated for added safety. Prior: roof repair (2020) and furnace (2020). Outdoor living shines with a wraparound patio, covered porches, and a freshly stained deck. Close to schools, shopping, and major commuter routes to Downtown. Home warranty included.
- Listing Status:
- Active
- Listing Office:
- RE/MAX SELECT REALTY : 724-933-6300
- Listing Agent:
- Denina Robinson : 724-933-6300
- MLS ID:
- 1729635

- Style: Cape CodTwo Story
- Pool: None
- Parking: Built InGarage Door OpenerParking spaces: 1
- Roofing: Asphalt
- Windows: Multi PaneWindow Treatments
- General: Vinyl Siding2
- Originating MLS: WESTPENN_WPN
- School District: North Hills
- County: Allegheny-North
- Water: Public
- Sewer: Public Sewer
- Source: WESTPENN_WPN
This listing courtesy of Denina Robinson, RE/MAX SELECT REALTY
Monthly Payment
- Principal & Interest $
- Property Taxes $
- Home Insurance $
- VA Funding Fee $
Location
Schools Nearby
West View Elementary School
47 Chalfonte Ave, Pittsburgh, PA, 15229
Grades KG-6
1.20 miles away
North Hills Middle School
55 Rochester Rd, Pittsburgh, PA, 15229
Grades 7-8
0.95 miles away
North Hills High School
53 Rochester Rd, Pittsburgh, PA, 15229
Grades 9-12
0.81 miles away






