22620 Hackberry Leaf Drive, New Caney, TX 77357
- 5 beds |
- 3 baths |
- 2,867 sqft
Single-Family Home
Built in 2025
6,730sqft lot
2 car garage
$135/sqft
Listed 28 days ago
Property Description
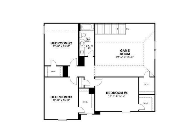
UNDER CONSTRUCTION TO BE COMPLETED IN FEBRUARY! This Columbus floor plan has 5 bedrooms and 3 baths and 2867 square feet of luxurious living space. As you enter, you'll find a bright and open main living area that connects the family room, kitchen, and dining area. The foyer leads to an open concept of a connected kitchen, family room, and dining area for seamless mobility around the home. The owner's suite is a retreat featuring a bay window with plenty of natural light and extra space. The owner's bathroom has a walk-in shower and a sizable closet. Upstairs, a large game room, while the three other bedrooms, each with walk-in closets and a second full bathroom, provide ample space. Outside is a covered patio perfect for unwinding and relaxing, offering a great space to enjoy the outdoors. This home is the ideal blend of beauty, charm, and elegance! Contact us today!
- Listing Status:
- Active
- Date Added:
- October 8, 2025 at 05:00AM
- Listing Office:
- M/I Homes : 281-962-8770
- Listing Agent:
- Heather Chavana : 1+281-962-8770
- MLS ID:
- 18132322
- Style: Traditional
- Parking: Attached
- Roofing: Composition
- Windows: Insulated/Low-E windows
- General: Batts InsulationBrick2Slab
- Road/Access: ConcreteCurbs
- HOA Amenities: 605.0Annually
- Originating MLS: Houston Association of Realtors
- School District: 47 - Splendora
- County: Montgomery
- Zoning: Lot 18 Block 3 Pinewood at Grand Texas Section 879870803500
- Fencing: Back Yard
- Water: Water District
- Source: Houston Association of Realtors
This listing courtesy of Heather Chavana, M/I Homes
Monthly Payment
- Principal & Interest $
- Property Taxes $
- Home Insurance $
- VA Funding Fee $
Location
Schools Nearby
Timber Lakes Elementary School
15450 Harrington Dr, New Caney, TX, 77357
Grades PK-6
2.78 miles away
Splendora Junior High School
23411 FM 2090 Rd, Splendora, TX, 77372
Grades 7-8
3.61 miles away
Splendora High School
23747 FM 2090 Rd, Splendora, TX, 77372
Grades 9-12
3.39 miles away






