$1,800
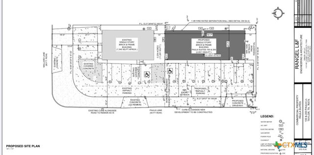
100 Paula Lane, Taylor, TX 76574
- 2,060 sqft
Commercial Property
Built in 2025
8,712sqft lot
—— car garage
$1/sqft
Listed 7 months ago
Property Description
New Construction - 2 units available or lease both as one large unit! $2/SF/Mo + NN (taxes and insurance. Maintenance will be tenants' responsibility.) 1030 SF each side $2060/mo+NN or a total of 2060 SF $4,120+NN. 10 Ft ceilings. Plenty of natural light. 9 parking spaces including 1 handicapped space. Great space for office or medical tenant. Contract early for ease of build out while contractor is still onsite! Estimated completion date April 2025. 2-5yr lease preferred.
- Listing Status:
- Active
- Date Added:
- April 8, 2025 at 05:00AM
- Listing Office:
- The Real Estate Social, LLC : 512-269-9272
- Listing Agent:
- Syrissa N. Dominguez : 512-269-9272
- MLS ID:
- 575934

- Parking: Four or more SpacesParking Space(s)Parking spaces: 9
- Roofing: CompositionShingle
- General: HardiPlank Type1Slab
- Road/Access: City Street
- Originating MLS: CTEXAS_WCAOR
- School District: Taylor ISD
- County: Williamson
- Zoning: C1AW0065 - BakerWm. J. SurR018703
- View: None
- Fencing: None
- Utilities: Electricity AvailableHigh Speed Internet AvailablePhone AvailableWater AvailableElectricity on Property
- Water: Public
- Sewer: Public Sewer
- Source: CTEXAS_WCAOR
This listing courtesy of Syrissa N. Dominguez, The Real Estate Social, LLC
Monthly Payment
$Est. Payment
- Principal & Interest $
- Property Taxes $
- Home Insurance $
- VA Funding Fee $
Location
Schools Nearby
T
Th Johnson Elementary School
3100 Duck Ln, Taylor, TX, 76574
Grades PK-KG
0.23 miles away
T
Taylor Middle School
304 Carlos G Parker Blvd NW, Taylor, TX, 76574
Grades 6-8
0.83 miles away
L
Legacy Early College High School
516 N Main St, Taylor, TX, 76574
Grades 9-12
1.39 miles away
